
7A
- STATO
- Costruito
- TIPOLOGIA
- Uffici
- SITO
- Alzano Lombardo (BG)
- ANNO
- 2021
- TEAM di PROGETTO
-
Michele Morcelli
Maria Chiello
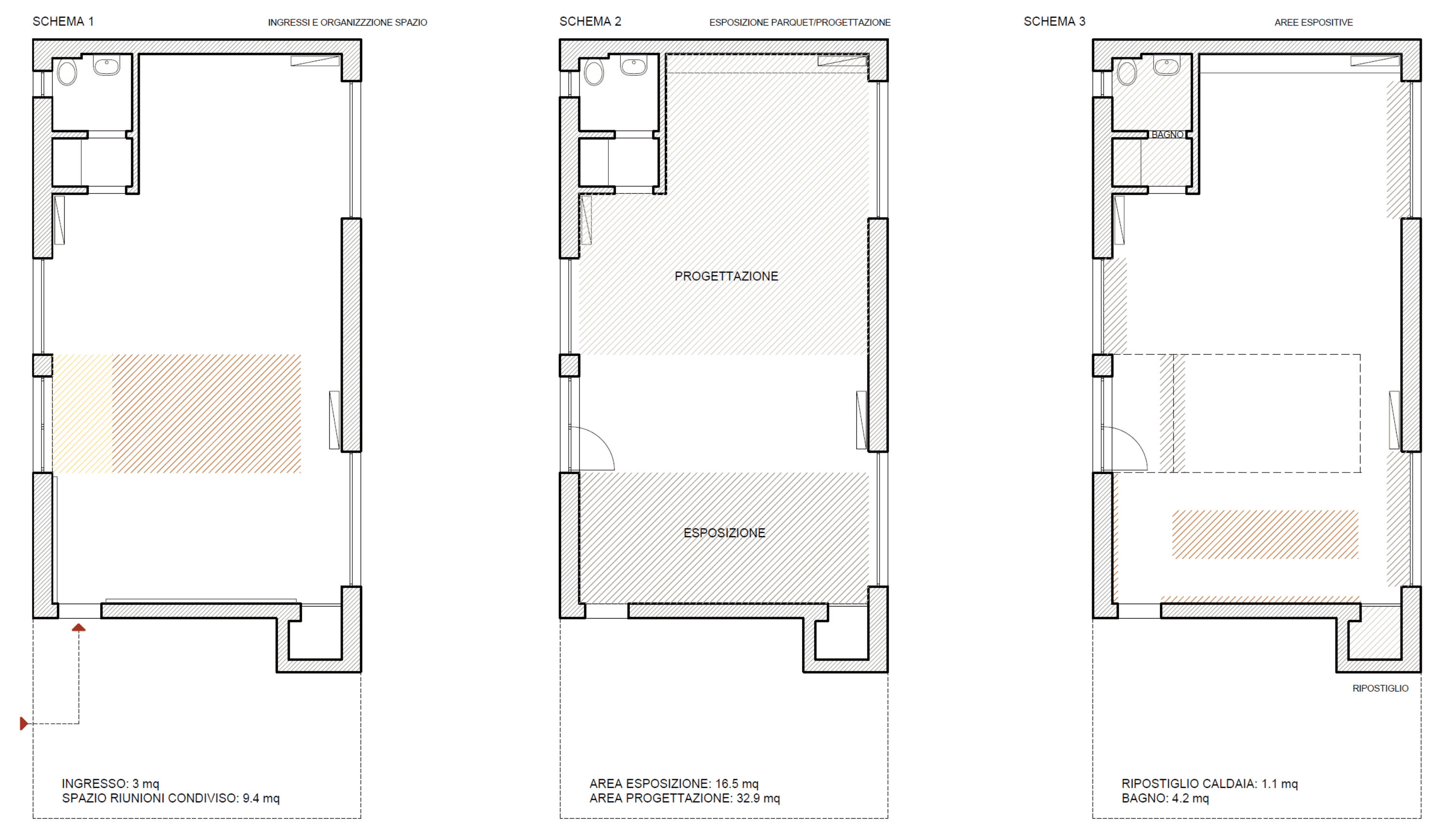
Il progetto interessa uno spazio commerciale ad Alzano Lombardo da allestirsi a supporto dell’attività del gruppo di professionisti e artigiani.
Grazie ad alcuni interventi minimi, si ottiene una configurazione che in pochi metri quadri permette di rispondere a esigenze diverse: quella di avere uno spazio espositivo, uno spazio per la progettazione e un’area dedicata alle riunioni e all’incontro con i clienti che possa essere a servizio di entrambe le funzioni.
La stanza rettangolare viene quindi divisa in due da un volume centrale chiuso da tende che possono essere aperte o chiuse garantendo un uso flessibile dello spazio.








